住まいづくり・住まい探しの情報ガイド

オーナーさま専用サイト

CASART

カサート1.5階モデル

より暮らしやすく、より愉しく
ゆとりの間取りと生きる

日常に豊かな幅を生み出す

日常に豊かな幅を生み出す
もうひとつの層

※階段蹴上げのすきまから幼児などが転落する危険性がありますので、採用の際にはご注意をお願いします。

1.5階建という選択

ワンフロアならではの
平屋の暮らしやすさと
2階建の間取りのゆとりを併せ持つ
平屋でもない、2階建でもない、
もうひとつの選択肢。

※建築基準法上では2階建扱いとなります。

カサート 1.5階モデル

1st Floor

1.5階ならではのダイナミックな勾配天井と、内と外をつなぐ大開口がつくる、縦にも横にも伸びやかな空間。日常を快適にする機能的な家事動線や間取りの設計が、ゆとりある暮らしをかなえてくれる。
カサート 1.5階モデル

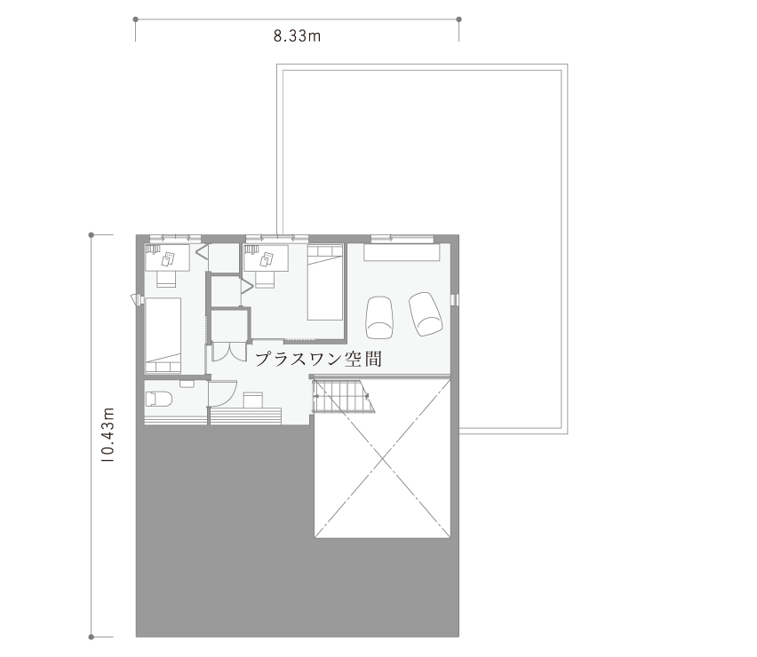
2nd Floor

吹き抜けで1階とゆるやかにつながる空間は、ほどよいプライベート感が心地いい。セカンドリビング、書斎、趣味スペースなど、自由に使える間取りのゆとりが暮らしの楽しみをひろげてくれる。

あなたらしさが、現れる暮らし

A lifestyle of your own making

エクステリアとプラン

Exterior & Plan

四季を通して、快適な暮らし

快適な暮らしのために空気の質にまでこだわる。
酷暑の夏も、厳寒の冬も、
吹き抜けのLDK、寝室、洗面、玄関にいたるまで変わらず心地いい。
高断熱の建物と全館空調がかなえる、
四季を通して変わらない快適な住みごこち。


パナソニック ホームズは、未来志向のまちづくりと豊かな地域社会の実現を目指す
プライム ライフ テクノロジーズ株式会社(PLT)のグループ会社です。