住まいづくり・住まい探しの情報ガイド
住まいづくり・住まい探しの情報ガイド
オーナーさま専用サイト

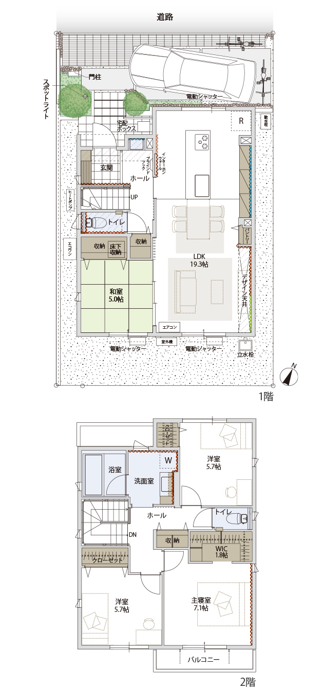
KITCHEN
家族のつながりを感じられる
「キッチン」空間
アイランドキッチンを中心に据えたLDKは、
料理をしながら家族との会話が弾む、笑顔あふれる空間に。
隣接する和室は、
くつろぎのひとときや客間として多彩に活躍します。
主寝室には、衣類から季節の荷物まですっきり収まる
ウォークインクローゼットを設け、
快適で心地よい暮らしを実現します。
凡例
アクセントクロス
マグネットウォール
タイル貼分
木貼分
下り天井
温水床暖房施工上変更が生じる場合がありますので、予めご了承ください。
※掲載の図面は設計段階の図面を基に描き起こした概略のもので、実際とは異なる場合があります。また、今後変更となる場合があります。家具・調度品等は販売価格には含まれておりません。
※建物延床面積・各階床面積は建築確認申請上の面積となりますので、登記上の面積と異なる場合があります。