住まいづくり・住まい探しの情報ガイド
住まいづくり・住まい探しの情報ガイド
オーナーさま専用サイト
お役立ちコラム

【目次】
都市部では、間口が狭く奥行きのある“細長い土地”に家を建てるケースが増えています。一見すると「狭そう」「暗そう」といった印象をもたれがちですが、設計や間取りの工夫によって、開放的で快適な住まいを実現できます。
本記事では、細長い家を建てる際に意識したい間取り設計のポイントや、実際に明るく心地良い空間を実現した建築実例を紹介しますので参考にしてください。

都市部では、地価の高騰や土地の分割により「うなぎの寝床」と呼ばれる細長い土地に家を建てるケースが増えています。近年は採光・通風・構造設計などの建築技術が進化しており、こうした敷地でも明るさと風通しに配慮した、暮らしやすい住まいを実現できます。
細長い家を計画する際は、単に部屋数を増やして機能を詰め込むのではなく「どのように暮らしたいか」を優先する考え方が重要です。家族のライフスタイルに合わせた動線設計や、上下・前後に広がる空間のつながりを意識した間取りが住みやすさを大きく左右します。
細長い家の最大の魅力は、土地の値段が高い利便性の高いエリアでも建てられる可能性が高まる点です。間口が狭いことで土地取得の費用を抑えられる上に、固定資産税や光熱費といったランニングコストの負担を軽減しやすい点もメリットです。
また、建物が横ではなく奥へと長く伸びる造りになっているため、部屋同士が一直線につながりやすく、空間自体がコンパクトで移動距離が短く済みます。たとえば、キッチンから洗面・ランドリースペースまでを一直線に配置すれば、毎日の家事が格段にスムーズになり、掃除やメンテナンスの手間も軽減できるでしょう。
加えて、道路に面する面積が少ないため、外部からの視線が気になりにくく、プライバシーを守れるのも細長い家ならではのメリットです。周囲の環境に合わせて窓の配置や間取りを工夫すれば、安心感のある住まいを実現できます。
細長い家は敷地の形状に影響を受けやすく、日当たりや風通しなど自然環境の条件に左右されやすい点がデメリットとして挙げられます。周囲が隣家に囲まれた立地の場合、外部から光や風を効率的に取り込むには、吹き抜けや中庭の設計、窓の配置などに工夫が欠かせません。
また、間取りの自由度が限られ、階段の位置や上下階の動線が複雑になりやすい傾向もあります。生活動線が長くなると日々の移動が負担になり、年齢を重ねたときに暮らしにくさを感じる可能性があります。
さらに、家具や収納の配置に制約が生じやすく、希望のレイアウトが実現できないケースも出てくるでしょう。細長い形状はが安定しにくいので、耐震性の確保にも十分な配慮が必要です。
細長い家はデメリットもありますが、工夫次第で快適な住まいを実現できます。本章では、細長い家をより心地良くするための具体的な間取りとデザインの工夫を紹介します。
細長い家は、採光や通風が課題となりやすいので、建物中央に中庭を配置して自然光や風が家の奥まで届くようにするなどの工夫が必要です。リビングに吹き抜けを設けて上下階をつなげれば、空間に縦の広がりが生まれ、明るさと開放感が向上します。隣家との距離が近くても、閉塞感を感じにくい快適な住空間をつくれるでしょう。
オープン階段は視界を遮らないため、空間全体に奥行きを生み出し、圧迫感をやわらげます
。縦長のスリット窓を取り入れることで、壁面の視線を外へ導き、採光と開放感の両立が可能です。家具の高さを抑えると、視線がより遠くまで抜け、室内が実際以上に広く感じられるでしょう。
キッチン・洗面所・ランドリールームを一直線に並べて配置すると、家事動線がシンプルになり、移動距離を短くできます。細長い間取りでも動線を無理なく整理できるため、料理・洗濯・掃除といった日常の作業がスムーズになり、無駄な往復を減らせるので、家事の時短やストレス軽減にもつながります。
細長い家は、壁や扉をできるだけ減らすことで、実際の面積以上の広がりを感じさせることができます。部屋をゆるやかにつなげると、光や風が遮られず家全体に行き渡りやすくなり、明るさと心地良さの両立が可能です。また、家族の存在を自然に感じ取れるため、コミュニケーションの取りやすい住まいになるでしょう。
細長い家は収納が不足しがちですが、壁面や高低差を活かして立体的に収納を確保すれば、すっきりとした印象を保てます。たとえば、天井まで届く造作棚や階段下のデッドスペースを活用すれば、限られた床面積でも収納スペースを十分に確保できます。生活用品をすっきりと収められる環境を整えることで、生活感の少ない快適な住まいの実現が可能です。



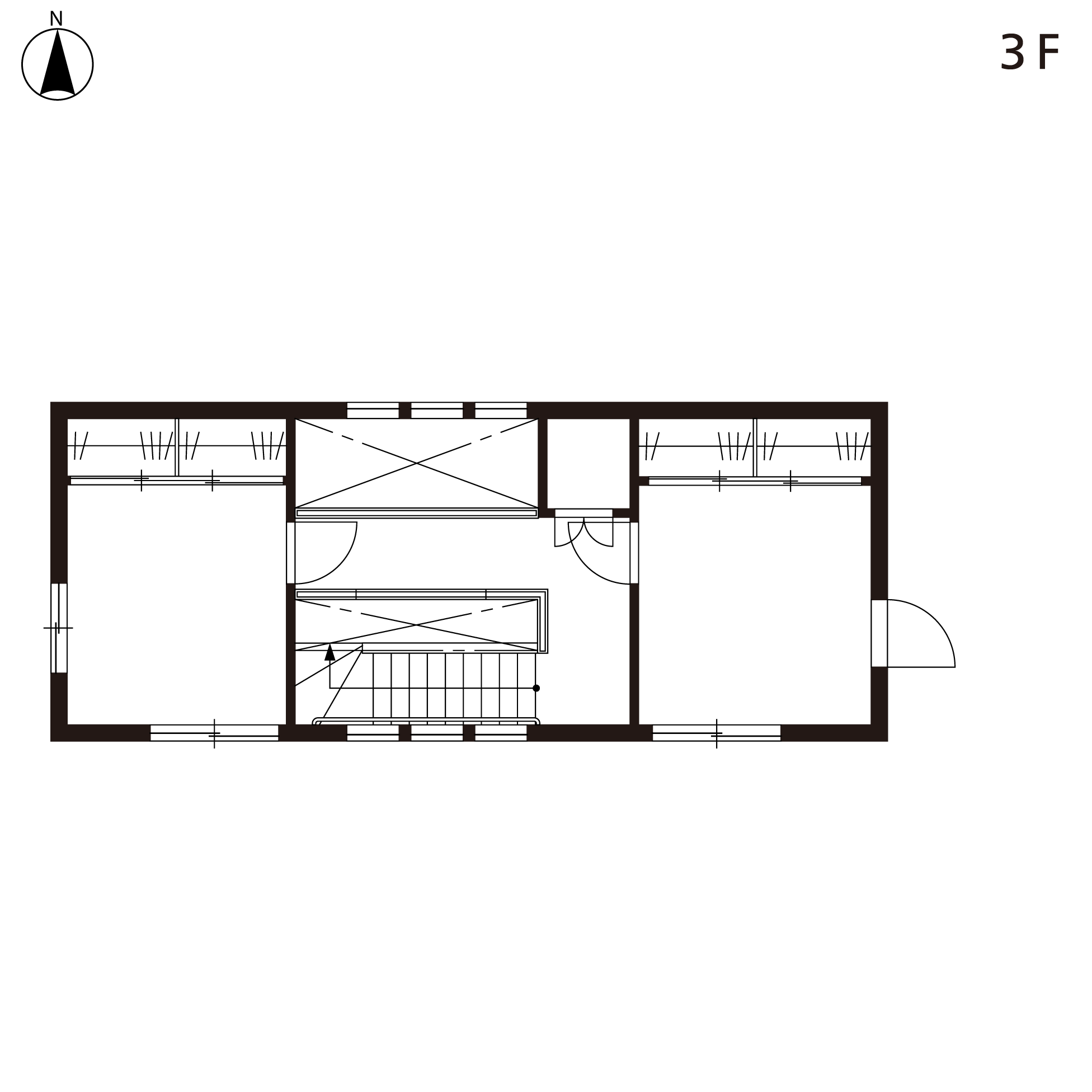
間口が狭く奥行きのある敷地を活かし、鉄骨構造で3階建てを実現したお宅の建築実例です。敷地面積約29坪に対して延床面積は約31坪と、限られた土地を最大限に活用しています。
縦の空間を活かした設計で、1階に主寝室と水回り、2階に家族が集うLDK、3階に子ども部屋を配置しています。構造には15cm単位で設計可能な鉄骨構造を採用し、斜線制限に対応できる勾配架構を組み合わせることで、法規制の厳しい都市部でも開放的な空間を実現しました。
2階のLDKには2カ所の吹き抜けを設け、視線を遮らないシースルー階段を採用している点も魅力です。家全体に光と気配が届くように計画されており、仕切りのないオープンな間取りで、家族がどこにいてもつながりを感じられる住まいです。また、勾配天井の低い部分を収納スペースとして有効活用し、無駄のない空間設計で、限られた面積でも十分な収納量を確保しています。
外観は白い光触媒タイル外壁「キラテック」を全面に使用し、縦長フォルムを引き締める直線的なデザインが印象的です。バルコニーのラインを活かした立体的な外観構成で、スタイリッシュかつ清潔感のある佇まいに仕上がっています。

細長い土地で理想の住まいを実現するには、設計の自由度が限られるからこそ、慎重な計画と柔軟なアイデアが欠かせません。本章では、後悔しない家づくりのために押さえておきたい4つの重要なポイントを紹介します。
細長い土地は形状が特殊な場合が多く、建築できる建物の形や高さに法的な制限がかかることがあります。希望する間取りを実現するために、建ぺい率・容積率・北側斜線制限などのルールを事前に確認しておきましょう。
また、自治体によっては防火地域・準防火地域・景観地区などの指定により、外観や屋根の仕様に制限が設けられる場合もあります。あらかじめ法規制を把握しておくことで、後からのプラン変更や追加費用の発生を防ぎ、スムーズな家づくりが可能です。
間口が狭い細長い土地では、駐車スペースと玄関の位置関係が暮らしやすさに直結します。
たとえば、駐車スペースを確保すると利便性が高まりますが、その分玄関アプローチが狭くなります。玄関周りにゆとりをもたせた場合は、車の停め方に制限が出るケースも考えられます。
駐車スペースの都合で縦列駐車にせざるを得ない場合は、車のサイズやドアの開閉スペース、開口部の位置まで丁寧に検討する必要があります。
建物の配置や動線計画は、日々の暮らしやすさに直結するため、設計初期からしっかり計画しましょう。
ライフステージの変化に対応できるよう、段差の少ないフラットな動線を意識した設計も大切です。たとえば、1階に寝室やトイレをまとめて配置すれば、将来階段の上り下りをせずに暮らせる間取りになります。
また、開口部を広く確保する・手すりを設けるなど、将来のリフォームを見据えた工夫を取り入れておくと安心です。あらかじめ対策を講じておくことで、年齢を重ねても快適に暮らせる住宅を実現できます。
細長い土地の設計には、建築基準法・斜線制限・防火地域などの知識に加え、採光・通風を確保する高度な設計力が求められます。そのため、狭小地や変形地での施工実績が豊富な住宅会社を選ぶことが重要です。
経験豊富なプロであれば、土地の制約を活かしながら快適に暮らせる間取りの提案が可能です。設計段階から土地情報を共有し、現地調査を含めて相談することで、安心して家づくりを進められます。
細長い家でも、設計段階で採光・動線・収納といった要素を工夫することで、快適に暮らせる機能的な住まいを実現できます。たとえば、中庭や吹き抜けで光と風を取り込み、家事動線を一直線に整えることで、日々の暮らしがより快適になるでしょう。制約の多い土地こそ、空間を最大限に活かすアイデア次第で“理想の住まい”を実現できます。
▼関連する記事
3階建てビルトインガレージの間取りは?|メリット・デメリットも紹介
おしゃれな3階建てを建てるには?間取りのポイントや実例を紹介
【注文住宅】人気の3階建ての間取り実例|メリット・デメリットも紹介
3階建て住宅で後悔しやすいこととは?事前に知っておきたいポイントを紹介!
50坪の広さで3階建ての間取り|おすすめの家族構成や実例を紹介
【注文住宅】3階建ての価格はどのくらいかかる?メリット・デメリットや注意する点も紹介
ペンシルハウスとは?メリット・デメリットと失敗しないポイントを解説
30坪で叶える理想の3階建て!基本設計や間取りプラン、建築費用を解説
4階建て注文住宅のすべて!設計・費用・法規制のポイントを徹底解説
3階建て最上階が暑い原因と対策!夏でも快適に過ごす方法とは?